Дизайн интерьера квартиры с полной перепланировкой
Реализованный ремонт квартиры. Дизайн-проект квартиры с полной перепланировкой. Фото выполненной работы
Содержание:
Новочеремушкинская 17.
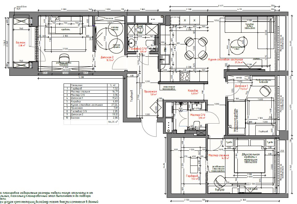
Площадь 104 м2.
Высота потолков 295 см.
Квартира для семьи из четырех человек, два сына, 3 и 10 лет. Квартира была от застройщика с вайтбоксом, но мы сильно к этому не привязывались, мы делали практически полную перепланировку.
Нам удалось сохранить пару стен, но в основном все демонтировалось, увеличили зону кухня за счет холла, увеличили зону санузла за счет холла, но все остальные помещения остались в прежних формах.
Площадь 104 м2.
Высота потолков 295 см.
Квартира для семьи из четырех человек, два сына, 3 и 10 лет. Квартира была от застройщика с вайтбоксом, но мы сильно к этому не привязывались, мы делали практически полную перепланировку.
Нам удалось сохранить пару стен, но в основном все демонтировалось, увеличили зону кухня за счет холла, увеличили зону санузла за счет холла, но все остальные помещения остались в прежних формах.
Кухня и гостиная
Кухня - гостиная
Площадь кухни гостиной 27 м2.
- Между кухней и коридором мы сделали интересное решение - перегородка высотой 130см, что бы установить полнофункциональную кухню, сделать фартук, но визуально не нагружать кухню и сохранить "воздух" и в кухне и прихожей.
- Фартук кухни отделан крупноформатным керамогранитом.
- В гостиной под телевизором мы расположили паровой камин, его интерная особенность в шикарном эффекте подсветки и схожестью с настоящим огнем, при этом не требует каких то сложных эксплуатационных элементов, он работает на воде, и не греет все предметы вокруг.
Мастер блок
Спальня
Спальня 17 м2.
Выполнена в таком же стиле как и гостиная, современный брутальный интерьер сочитается с небольшими интеграциями классики, в виде молдингов, в виде классической текстуры и оттенка ореха, и освещение с претензией на современную классику.
В изголовье мы сделали шикарную панель которая выполнена из шпона американского ореха со вставками из латуни.
Потолок окрашен в темно серый цвет и в данном случае этот прием, визуально расширил помещение, при этом в вечернее время спальня очень уютная и камерная.
Напротик кровати мы зонировали стену на 2 части: зона ТВ и будуарная зона с минималистичной подвесной консолью.
Из спальни мы попадаем в темный брутальный гардероб. Перегородки сделаны из тонированного стекла, Union.
Выполнена в таком же стиле как и гостиная, современный брутальный интерьер сочитается с небольшими интеграциями классики, в виде молдингов, в виде классической текстуры и оттенка ореха, и освещение с претензией на современную классику.
В изголовье мы сделали шикарную панель которая выполнена из шпона американского ореха со вставками из латуни.
Потолок окрашен в темно серый цвет и в данном случае этот прием, визуально расширил помещение, при этом в вечернее время спальня очень уютная и камерная.
Напротик кровати мы зонировали стену на 2 части: зона ТВ и будуарная зона с минималистичной подвесной консолью.
Из спальни мы попадаем в темный брутальный гардероб. Перегородки сделаны из тонированного стекла, Union.
Детские
- Две детские выполнены в разных цветовых решениях, одна более взрослая и брутальная, с элементами из лофта, баскетбольной тематикой, зоной с игровой консолью, яркими акцентами и явно подростковым характером.
- Вторая более юная детская комната, с мягкими пастельными оттенками и динозавриками))
- Обе комнаты явно отражают характеры и хобби своих жителей.
Прихожая и санузлы
- Яркая прихожая синей акцентной стеной с порога заявляет о яркости проекта. Дверь мы интегрировали со стеной, заменили накладку двери нашей панелью в цвет панели вокруг двери.
- Необычная консоль сделана на заказ.
- В санузлах использовали крупноформатный керамогранит, большое внимание уделили подбору золотой сантехники и фурнитруы.
- Вся мебель выполнена на заказ, в отделке использован шпон ореха, единый для всей квартиры, и латунь.
Фотографии реализованных проектов
Ответим на любой вопрос по дизайну, ремонту и строительству в WhatsApp
Встреча с ведущим архитектором
Любой ремонт начинается с разработки проекта. Запишитесь на встречу с нашими архитекторами, что бы узнать все о вашем предстоящем ремонте и проекте
Наши достижения
НЕКОТОРЫЕ НАГРАДЫ, ПАМЯТНЫЕ СОБЫТИЯ И ПОБЕДЫ НАШЕЙ КОМАНДЫ
Ждем в гости
Адрес: Москва, ул. Маршала Рыбалко 2к3
Телефон: 8(916)903-79-79
Email: intersiodesign@yandex.ru
Для поставщиков: partnerintersio@yandex.ru
C 10-00 до 20-00 ПН-ПТ
С 10-00 до 17-00 СБ
С 10-00 до 17-00 СБ