• Главная
  • Наши работы
  • О бюро
Logo
  • Услуги
  • Контакты
  • Реализованные
  • Блог
Дизайн интерьера: фото проекта в NEVA Towers 
Реализованный проект в NEVA Towers. Дизайн интерьера квартиры под сдачу в аренду. Фото выполненной работы.
Содержание:
  • Общие сведения о дизайн проекте
  • Планировка
  • Кухня и гостиная
  • Мастер блок
Апартаменты в NEVA Towers 
Площадь 70 м2.
Заказчица приобрела квартиру как инвестицию, она планировала ее под сдачу. 
Квартира застройщиком сдавалась с полной чистовой отделкой была меблирована кухня и полностью сделан санузел: плитка, сантехника.

Перед нами стояла задача, сделать рестайлинг, к слову цена аренды после наших изменений выросла в 2,5 раза!

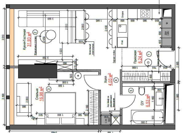
Планировка
Площадь кухни гостиной 31 м2.
Комната вытянутой формы мы зонировали на 2 зоны, ближе к окнам расположилась гостиная, в глубине - кухня.
Мастер блок (спальня, гардеробная и ванная) вышел общей площадью в 27 м2. 
Квартира сдавалась с простой отделкой, мы ее довели до идеала.
Кухня и гостиная
  • На кухне под баром мы сделали латунную панель в зоне стульев, а изначально там было зеркало. 
  • Повесили подвесные светильники новые и добавили деревянную секцию с бокалами.
  • Весь шпон в квартире выполнен из одного цвета, это американский орех. В зоне ТВ применили декоративную штукатурку с встроенными латунными профилями и меблировали эту зону: стеллаж из шпона с подсветкой, того же цвета напольная тумба в темно-серой матовой эмали, и полка бежевая в глянцевой эмали.
  • Напротив расположили угловой диван синий и за диван добавили зеркальную полосу, как прием для расширения пространства, имитации продолжение прохода.
  • Добавили бра и картину  на заказ художник нарисовал в этой зоне, еще в конце коридоре.
Мастер блок
  1. В спальне мы сделали шикарную панель из ореха.
  2. В ней мы использовали сочетание фактуры и текстуры ореха, и добавили зеркальные вставки. 
  3. С другой стороны от кровати идет стеклянный гардероб от пола до потолка. 
  4. Напротив кровати располагается консоль с зеркалом и  реечной панелью.
  5. Спальня у нас без телевизора.
Фотографии реализованных проектов
Ответим на любой вопрос по дизайну, ремонту и строительству в WhatsApp
Встреча с ведущим архитектором
Любой ремонт начинается с разработки проекта. Запишитесь на встречу с нашими архитекторами, что бы узнать все о вашем предстоящем ремонте и проекте

Нажимая на кнопку, вы даете согласие на обработку персональных данных

Наши клиенты

Наши достижения
НЕКОТОРЫЕ НАГРАДЫ, ПАМЯТНЫЕ СОБЫТИЯ И ПОБЕДЫ НАШЕЙ КОМАНДЫ
В конце 2020 года наша компания попала в рейтинг лучших 29 студий Москвы, по версии Итальянской компании CIRCU
В конце 2020 года получили награду PREMIUM LIVING за реализованный проект, и вошли в топ 100 лучших элитных интерьеров России
Ждем в гости
Адрес: Москва, ул. Маршала Рыбалко 2к3

Телефон: 8(916)903-79-79

Email: intersiodesign@yandex.ru
Для поставщиков: partnerintersio@yandex.ru

C 10-00 до 20-00 ПН-ПТ
С 10-00 до 17-00 СБ

Данные для заявки

Нажимая на кнопку, вы даете согласие на обработку персональных данных

Спасибо!
Мы свяжемся с вами в течение 15 минут