Дизайн интерьера: проект ЖК NEBO (Москва)
Реализованный проект NEBO136. Дизайн интерьера квартиры в сдержанном классическом стиле с яркими акцентами. Фото дизайна интерьера.
Содержание:
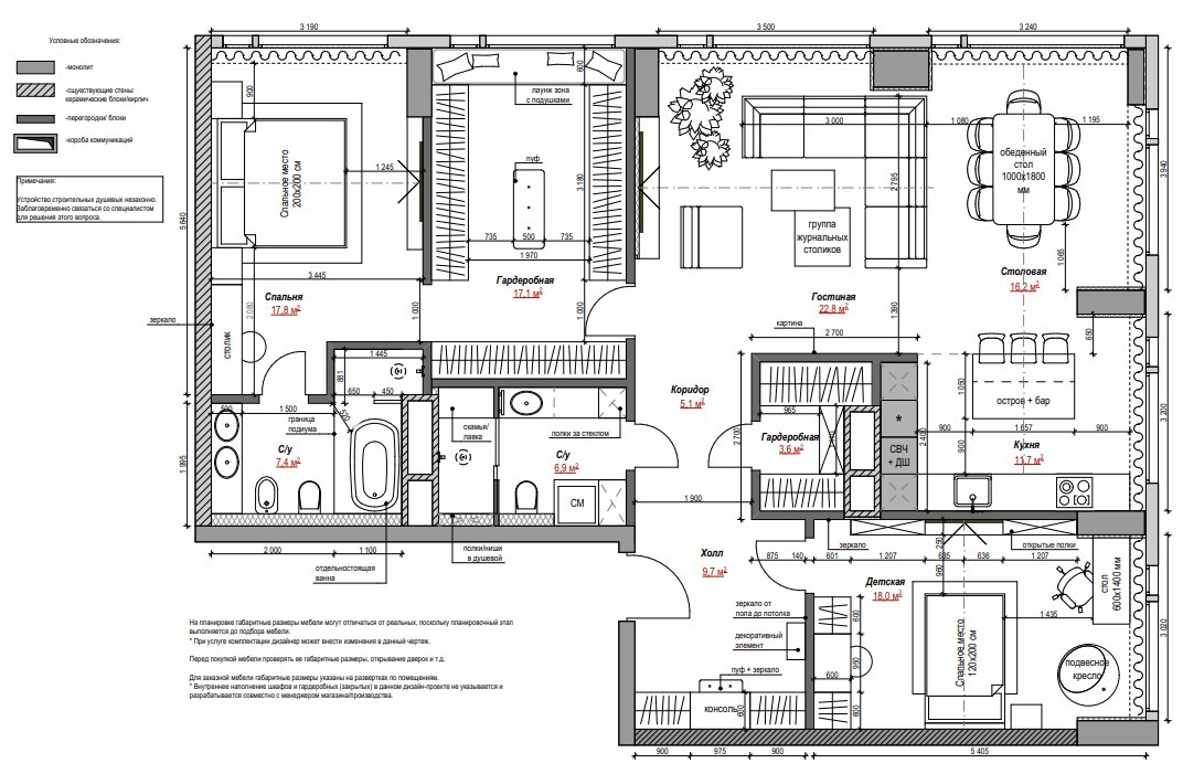
ЖК Небо, 136 кв м.
Проект закончили в 2021 году
Реализовали в 2022.
Квартира рассчитана на 3х человек – семья с ребенком.
Высота потолков чистовая 2,87м (черновая 2,97 м).
Клиентам хотелось сдержанный классический интерьер, но с применением ярких акцентов и дизайнерских решений, и нам это удалось!
Кухня и гостиная
Гостиная
- Три разные зоны разбиты на квадраты: зона дивана и ТВ (22 метра).
- Столовая зона (16 метров) и кухня с островом (12 метров), расположенная в нише.
- Зонированию также отвечает многоуровневый потолок, выделенный квадратами согласно зонам. В опуске потолка предусмотрена подсветка.
- Общая зона выполнена в светлых тонах с применением элементов современной классики – молдингов на стенах.
- В качестве контраста мы применили природные материалы – настенные деревянные панели и крупноформатный керамогранит с рисунком под мрамор.
- Также добавили яркие акценты в мебели и текстиле – изумрудный, любимый цвет заказчиков
Кухня
Также построена на контрастах, светлым тоном выделены верхние шкафы, а база и колонки кухни утопают зачёт темного глубокого цвета.
Остров предусмотрен с хранением со стороны кухни и рассчитан на два посадочных места со стороны гостиной.
Примененный камень перекликается по всем зонам, дополняя друг друга
Поверхность стола покрыта акрилом.
Преимущество такого покрытия:
Остров предусмотрен с хранением со стороны кухни и рассчитан на два посадочных места со стороны гостиной.
Примененный камень перекликается по всем зонам, дополняя друг друга
Поверхность стола покрыта акрилом.
Преимущество такого покрытия:
- — натуральный камень становится не холодным;
- зашита от внешних воздействий (сколов, пятен);
- покрытие столешницы становится матовое (soft touch).
Мастер блок
Спальня
Мы разместили: вместительную гардеробную (17 метров), зону с кроватью (17 метров), и су с выходом из спальни (7,5 метров). Гардеробная получилась очень светлая так как в помещение расположено окно, а сборы станут приятнее, так как под этим окном расположено удобное мягкое основание.
Санузел и гардероб
Мастер су украшает отдельностоящая ванна, но главным элементом притяжения является мозаика ручной работы с изображением Давида за ней.
Большое зеркало и две раковины – мечта для сборов вдвоем, именно такой вариант мы разместили в мастер блоке, т к позволяла площадь.
Большое зеркало и две раковины – мечта для сборов вдвоем, именно такой вариант мы разместили в мастер блоке, т к позволяла площадь.
Детская
Детская (18 метров) для дочки светлая и нежная, с добавлением цвета пыльной розы.
Рабочую зону у окна обрамляют существующие пилоны, в отделке светлым крупноформатным керамогранитом.
Кровать с высоким классическим изголовьем и хранение разного функционала выполнены в едином стиле современной классики.
В зоне хранения (в нише шкафов) разместилась уютная будуарная зона.
Интересный элемент детской – подвесное кресло у окна, в котором можно почитать книжку вечером под вечерним светом от настенного бра
Рабочую зону у окна обрамляют существующие пилоны, в отделке светлым крупноформатным керамогранитом.
Кровать с высоким классическим изголовьем и хранение разного функционала выполнены в едином стиле современной классики.
В зоне хранения (в нише шкафов) разместилась уютная будуарная зона.
Интересный элемент детской – подвесное кресло у окна, в котором можно почитать книжку вечером под вечерним светом от настенного бра
Прихожая
Холл (или входная зона, 10 метров) заслуживает отдельного внимания. Гостей встречает элемент искусства на постаменте, а люстра перекликается с ним за счёт необычной формы. Также прослеживается игра геометрии: контрастные линии керамогранита на полу отвечают геометрии опуска потолка, а косые линии на шкафах придают интерес, казалось бы, привычным предметам мебели.
По всей квартире прослеживается применение латунного декора: светильники, элементы мебели, фурнитура и декор
Есть гостевой-детский су (7 метров), но не вижу его фоток. Там размещен хоз блок в виде стиралки и сушилки. Выполнен в теплых нейтральных тонах.
И гардеробная при входе (3,6 метров)– хранение сезонных вещей, тоже нет фоток
Опуски потолка сделаны не только для красоты, но и несут функционал: по всей квартире спроектирована приточно-вытяжная вентиляция и кондиционирование, спрятанные под потолком. Видимые части в интерьере – аккуратные решетки в цвет мебели или стен.
По всей квартире прослеживается применение латунного декора: светильники, элементы мебели, фурнитура и декор
Есть гостевой-детский су (7 метров), но не вижу его фоток. Там размещен хоз блок в виде стиралки и сушилки. Выполнен в теплых нейтральных тонах.
И гардеробная при входе (3,6 метров)– хранение сезонных вещей, тоже нет фоток
Опуски потолка сделаны не только для красоты, но и несут функционал: по всей квартире спроектирована приточно-вытяжная вентиляция и кондиционирование, спрятанные под потолком. Видимые части в интерьере – аккуратные решетки в цвет мебели или стен.
Фотографии реализованных проектов
Ответим на любой вопрос по дизайну, ремонту и строительству в WhatsApp
Встреча с ведущим архитектором
Любой ремонт начинается с разработки проекта. Запишитесь на встречу с нашими архитекторами, что бы узнать все о вашем предстоящем ремонте и проекте
Наши достижения
НЕКОТОРЫЕ НАГРАДЫ, ПАМЯТНЫЕ СОБЫТИЯ И ПОБЕДЫ НАШЕЙ КОМАНДЫ
Ждем в гости
Адрес: Москва, ул. Маршала Рыбалко 2к3
Телефон: 8(916)903-79-79
Email: intersiodesign@yandex.ru
Для поставщиков: partnerintersio@yandex.ru
C 10-00 до 20-00 ПН-ПТ
С 10-00 до 17-00 СБ
С 10-00 до 17-00 СБ