Дизайн интерьера квартиры - проект CITY PARK
Реализованный проект CITY PARK. Дизайн интерьера - фото и список выполненных работ.
Содержание:
Заказчики Никита и Ульяна обратились к нам с необычной просьбой, помимо функционального интерьера было необходимо грамотно спроектировать зову гостиной с выходом на террасу.
Стилистика интерьера должна была отвечать требованиям современной классики с применением ярких цветовых акцентов
Проект был выполнен в 2020 году, реализация в 2021
Общая площадь квартиры 131 метр.
Черновая высота потолков 3,1 метр. Чистовая – 3 метра
Стилистика интерьера должна была отвечать требованиям современной классики с применением ярких цветовых акцентов
Проект был выполнен в 2020 году, реализация в 2021
Общая площадь квартиры 131 метр.
Черновая высота потолков 3,1 метр. Чистовая – 3 метра
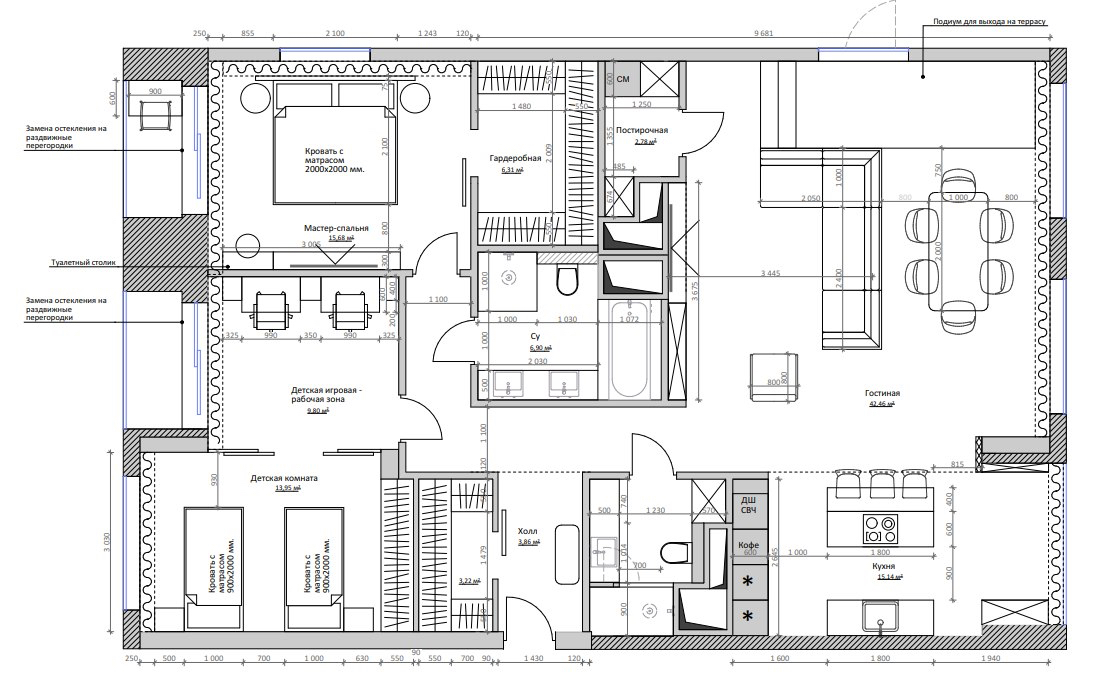
Планировка
В холле нас встречает композиция из консоли и пуфа, все хранение спрятано от посторонних глаз за откатной дверью гардеробной. Просторная гостиная (42 метра) с широким подиумом для выхода на террасу. Сзади дивана поместилась просторная обеденная группа на 8 персон (обеденный стол Baxter) , а кухня (15 метров) спрятана в нишу. Для расширения площади кухни было принято решение присоединить балкон и разместить дополнительное хранение. Мастер блок отделен и состоит из зоны с кроватью (16 метров), вместительной гардеробной (6,3 метра) и кабинетом в зоне балкона (2,5 метра). Желание заказчиков было не разъединять спальни дочей, а сделать одно пространство, состоящее из зоны сна и игровой/рабочей зоны за перегородкой. Хоз блок выделен в отдельное помещение площадью 3 метра.
Кухня и гостиная
Кухня
Верхние фасады кухни как отдельный вид искусства, выполнены на заказ. На первый взгляд может покаяться, что они латунные, тяжёлые и холодные, но это не так. Покрытие фасадов – сусальное золото, которые играет при разных сценариях освещения. Колонки кухни утоплены в специальную нишу, материал которой плавно продолжается в коридор, создавая единую концепцию интерьера. В присоединенном балконе разместили дополнительное хранение в виде полок с подсветкой за тонированным стеклом
В объединенной зоне кухни гостиной есть разные световые сценарии, основное освещение в виде хаотичных встроенных в потолок спотов, дополнительное – трековая система, сформированная линиями и акцентное – подвесы над обеденным столом (Baxter) и над островом (Flos)
В объединенной зоне кухни гостиной есть разные световые сценарии, основное освещение в виде хаотичных встроенных в потолок спотов, дополнительное – трековая система, сформированная линиями и акцентное – подвесы над обеденным столом (Baxter) и над островом (Flos)
Основная задача была органично вписать подиум для выхода на террасу, сделать его не только красивым, но и функциональным. За красоту отвечает отделка подиума – крупноформатный керамогранит с подсвеченными ступенями, а в качестве функциональной составляющей мы придумали хранение под платформой.
Яркий диван является акцентом в интерьере и привлекает внимание. Напротив дивана разместился ТВ. Необычное решение заключается в том, что ТВ замаскирован в мебельной конструкции. Вертикальные деревянные панели тоже выдвинуты не случайно, наверху вы можете видеть решетки канальной системы вентиляции и кондиционирования, выступ мебельных панелей позволил грамотно расположить систему, маскируя ее.
Справа от ТВ дверь в хоз блок, к ней мы также не стали привлекать внимание, а скрыли ее в текстуре деревянных панелей, продолжающихся от ТВ.
Яркий диван является акцентом в интерьере и привлекает внимание. Напротив дивана разместился ТВ. Необычное решение заключается в том, что ТВ замаскирован в мебельной конструкции. Вертикальные деревянные панели тоже выдвинуты не случайно, наверху вы можете видеть решетки канальной системы вентиляции и кондиционирования, выступ мебельных панелей позволил грамотно расположить систему, маскируя ее.
Справа от ТВ дверь в хоз блок, к ней мы также не стали привлекать внимание, а скрыли ее в текстуре деревянных панелей, продолжающихся от ТВ.
Гостиная
Мастер блок
Спальня
Спальня отличается нестандартной планировкой – мы разместили изголовье кровати к окну.
Управление освещением осуществляется при входе в спальню, а также запрограммированно на мобильные устройства, что позволяет удобно переключать все сценарии освещения.
Мягкое обнимающее изголовье кровати выполнено на заказ. Основной объем спальни светлый, стены в матовой краске, украшены молдингами. А на стене с ТВ контрастный натуральный наборный шпон эвкалипт, секции в хаотичном порядке придают в сочетании с латунными вставками придают элементу дополнительный интерес. Круглые бра из натурального камня отлично сочетаются с будуарной зоной – круглым зеркалом.
Управление освещением осуществляется при входе в спальню, а также запрограммированно на мобильные устройства, что позволяет удобно переключать все сценарии освещения.
Мягкое обнимающее изголовье кровати выполнено на заказ. Основной объем спальни светлый, стены в матовой краске, украшены молдингами. А на стене с ТВ контрастный натуральный наборный шпон эвкалипт, секции в хаотичном порядке придают в сочетании с латунными вставками придают элементу дополнительный интерес. Круглые бра из натурального камня отлично сочетаются с будуарной зоной – круглым зеркалом.
Ванная
Не входит в мастер блок (не отделен от общей зоны), так как предполагает использование не только родителей, но и детей. Две раковины чаши с двумя зеркалами в латунном обрамлении являются украшением санузла. Справа и слева стеклянные светильники дают дополнительное вечернее освещение. В санузле разместили душевую комфортного размера 1х1 метро и ванную 1700х750 мм. Все хранение предусмотрено в закрытых секциях, справа от раковин полки с подсветкой, а тонированным стеклом. В зоне ванны предусмотрена специальная ниши для тюбиков.
Санузел выполнен в контрастных цветах с использованием природных текстур под мрамор. А инсталляция выделена деревянной панелью, которая отвечает требованием влагозащиты.
Санузел выполнен в контрастных цветах с использованием природных текстур под мрамор. А инсталляция выделена деревянной панелью, которая отвечает требованием влагозащиты.
Детская
Принципиально разделена на две зоны, зона сна (14 метров) и игровая/рабочая зона (10 метров). Разделяет их откатная перегородка нестандартной формы в виде арок, выполненная на заказ. Зона сна — это сказочные кроватки с заячьими ушками, о которых мечтает любая девочка. Также за изголовьями кроватей фреска с рисунком, выделенная молдингами. Большой вместительный шкаф с интересными фасадами и фурнитурой позволяет разместить все вещи девочек.
Рабочая зона располагается вдоль стены, системы хранения предусмотрены как открытого, так и закрытого типа от пола до потолка, что позволяет разместить всю необходимую канцелярию. Рабочие столы спроектированы комфортной ширины – 1 метр на каждого ребенка.
Рабочая зона располагается вдоль стены, системы хранения предусмотрены как открытого, так и закрытого типа от пола до потолка, что позволяет разместить всю необходимую канцелярию. Рабочие столы спроектированы комфортной ширины – 1 метр на каждого ребенка.
Гостевой санузел
Разместили просторную душевую 900х1200 мм, внутри предусмотрели встроенные в нишу полки, выполненные из керамогранита, встроенный шкаф с хранением и функциональную тумбу с раковиной чашей и стеклянные подвесные светильники, которые не только украшают зону с зеркалом, но и служат вечерним освещением.
Прихожая
Напротив входной двери мы расположили крупноформатный керамогранит с настенным декором. Таким образом мы создали эффект «вау» во входной зоне. Справа от входа располагается консоль с пуфом, этот блок выделен выступающей конструкцией из гипсокартона с подсветкой. Украшением служит картина в современном стиле и объемные подвесные светильники. В коридоре в качестве ночного света использованы круглые бра из натурального камня
Фотографии реализованных проектов
Ответим на любой вопрос по дизайну, ремонту и строительству в WhatsApp
Встреча с ведущим архитектором
Любой ремонт начинается с разработки проекта. Запишитесь на встречу с нашими архитекторами, что бы узнать все о вашем предстоящем ремонте и проекте
Наши достижения
НЕКОТОРЫЕ НАГРАДЫ, ПАМЯТНЫЕ СОБЫТИЯ И ПОБЕДЫ НАШЕЙ КОМАНДЫ
Ждем в гости
Адрес: Москва, ул. Маршала Рыбалко 2к3
Телефон: 8(916)903-79-79
Email: intersiodesign@yandex.ru
Для поставщиков: partnerintersio@yandex.ru
C 10-00 до 20-00 ПН-ПТ
С 10-00 до 17-00 СБ
С 10-00 до 17-00 СБ