Дизайн интерьера: фото проекта ANN1147
Реализованный проект в ЖК 1147. Дизайн интерьера квартиры в стиле минимализма с природными элементами. Фото реализованного проекта.
Содержание:
ЖК 1147 Ann,
Проект делали в 2019 году
Реализация в 2020
Клиенты Анна и Юрий пришли с запросом современного минималистичного интерьера с природными элементами - пробка, дерево, камень преобладают в интерьере
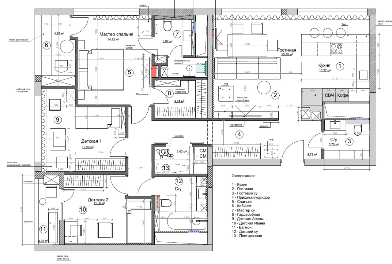
Площадь 120 кв м
Высота потолка черновая 3 м, чистовая2,9 м
Проект делали в 2019 году
Реализация в 2020
Клиенты Анна и Юрий пришли с запросом современного минималистичного интерьера с природными элементами - пробка, дерево, камень преобладают в интерьере
Площадь 120 кв м
Высота потолка черновая 3 м, чистовая2,9 м
По планировке был запрос на большую вместительную кухню совмещенную с гостиной, отдельный мастер блок (спальня, гардероб и су), также удалось выделить в мастер блоке кабинет.
Заказчица писательница и чаще всего работает из дома, проводит конференции в том числе.
Две раздельные равноценные детские - мальчик и девочка, су детский, су при входе гостевой (без душа), отдельная постирочная зона.
Кухня - гостиная: площадь - 20 м гостиная и 13,5 м кухня.
Нам удалось разместить большой диван, обеденный стол и п-образную кухню с полубарным ответвлением.
Заказчица писательница и чаще всего работает из дома, проводит конференции в том числе.
Две раздельные равноценные детские - мальчик и девочка, су детский, су при входе гостевой (без душа), отдельная постирочная зона.
Кухня - гостиная: площадь - 20 м гостиная и 13,5 м кухня.
Нам удалось разместить большой диван, обеденный стол и п-образную кухню с полубарным ответвлением.
Кухня и гостиная
Классные решения применены и по технике, на кухне удалось разместить большой глубокий холодильник нестандартных размеров, а все ТВ квартиры превращаются в картины, сам блок от этих тв расположен в специально продуманных во время проекта местах, соединение происходит без проводов (это телики самсунг - как картина).
Также на кухне вы не найдете вытяжку, потому что она встроена в варочную поверхность и не нагромождает визуал кухни.
Уют создают разные световые сценарии: точечный свет, подсветные светильники и много подсветок (карнизы штор, цоколь кухни, подсвеченные стеклянные полки кухни). Еще один интересный привлекающий внимание световой элемент - светильники из бетона над баром
Также на кухне вы не найдете вытяжку, потому что она встроена в варочную поверхность и не нагромождает визуал кухни.
Уют создают разные световые сценарии: точечный свет, подсветные светильники и много подсветок (карнизы штор, цоколь кухни, подсвеченные стеклянные полки кухни). Еще один интересный привлекающий внимание световой элемент - светильники из бетона над баром
Мастер блок
Состоит из спальни 14м, су 5м, гардеробной 4,3 м и также нам удалось выделить зону небольшого кабинета за изголовьем кровати - 5м.
Кровать выделена белой пробкой и объемной конструкцией из гипсокартона с подсветкой по периметру. Основная отделка стен - матовая краска.
Напротив кровати расположился тот же современный телек картина и два симметричных входа - су и гардеробная.
Помещения получились небольшие по площади, но очень функциональные, в каждой из зон много хранения, а в кабинете удалось организовать сидячее место под окном.
Мебель мастер блока также выполнена на заказ из натурального дерева с вставками из матовой смолы
Кровать выделена белой пробкой и объемной конструкцией из гипсокартона с подсветкой по периметру. Основная отделка стен - матовая краска.
Напротив кровати расположился тот же современный телек картина и два симметричных входа - су и гардеробная.
Помещения получились небольшие по площади, но очень функциональные, в каждой из зон много хранения, а в кабинете удалось организовать сидячее место под окном.
Мебель мастер блока также выполнена на заказ из натурального дерева с вставками из матовой смолы
Фотографии реализованных проектов
Наши достижения
НЕКОТОРЫЕ НАГРАДЫ, ПАМЯТНЫЕ СОБЫТИЯ И ПОБЕДЫ НАШЕЙ КОМАНДЫ
Ответим на любой вопрос по дизайну, ремонту и строительству в WhatsApp
Встреча с ведущим архитектором
Любой ремонт начинается с разработки проекта. Запишитесь на встречу с нашими архитекторами, что бы узнать все о вашем предстоящем ремонте и проекте
Ждем в гости
Адрес: Москва, ул. Маршала Рыбалко 2к3
Телефон: 8(916)903-79-79
Email: intersiodesign@yandex.ru
Для поставщиков: partnerintersio@yandex.ru
C 10-00 до 20-00 ПН-ПТ
С 10-00 до 17-00 СБ
С 10-00 до 17-00 СБ
© Since 2008